Категории каталога
Каталог / Строительство и ремонт / Технологии ремонта / Технология ремонта квартиры. Очередность работ

Технология ремонта квартиры. Очередность работ

Прежде чем подойти к деталям технологии ремонта и отделки, мы хотели бы познакомить Вас с общими правилами проведения ремонтно-строительных работ, последовательностью и сроками выполнения различных циклов.

Как правило, любая стройка начинается с фундамента. В нашем случае это подготовка строительной площадки для проведения строительных работ, т.е. удаление старых перегородок, демонтаж различных конструкций, очистка стен и потолков до основания, демонтаж напольных покрытий, цементной стяжки, сантехнического оборудования, дверных блоков и др., в зависимости от первоначального состояния ремонтируемого помещения.

Казалось бы, что может быть проще; сломал и выбросил, но кажущаяся простота порой может привести к очень неприятным последствиям. Например, при неумелом демонтаже перегородки можно повредить сантехнические трубы и соответственно затопить соседа или попасть на скрытую электропроводку и получить "заряд бодрости на весь день" или еще хуже, устроить пожар. При выносе мусора можно очень легко сломать лифт (строительный мусор при попадании между полом и стеной лифта, вызывает поломку лифта). Поэтому следует иметь ввиду: в строительстве нет легких или дешевых работ, каждый процесс имеет свою технологию и продолжительность.

После проведения демонтажных работ и выноса мусора будем считать, что фундамент заложен. Главное - не забыть вымыть лифт и лестничную площадку, иначе наживете себе врагов на весь срок оставшегося ремонта.

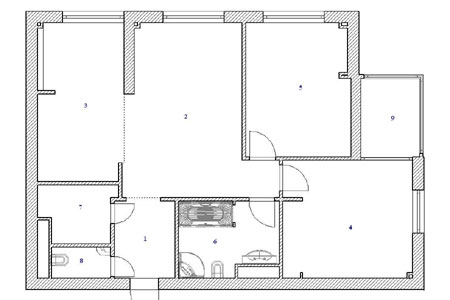
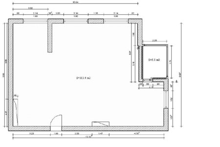
План квартиры до перепланировки План квартиры после перепланировки

План квартиры до перепланировки

План квартиры после перепланировки

Следующий этап работ - это доставка строительных материалов на объект. Располагать материалы на объекте необходимо так, чтобы: - у вас было свободное место для передвижения и проведения работ, - не перетаскивать материалы из угла в угол, это отнимает много сил и времени. Завоз крупногабаритного материала (кирпич, сухая смесь, штукатурка, блоки и др.) следует проводить поэтапно. Необходимо учитывать следующее обстоятельство: крупный, тяжелый материал на "Жигулях" не подвезешь! Поэтому такой материал лучше брать с небольшим запасом (если что-то останется, то дешевле будет одним разом все перевезти на грузовой машине, чем подвозить недостающий кирпич или смесь, цена доставки будет значительно дороже самого материала).

Теперь начинается непосредственно работа.

Эскизы интерьера: 3D-модель итерьера прихожей Эскизы интерьера: 3D-модель итерьера кухни Эскизы интерьера: 3D-модель итерьера спальни

В первую очередь производится разметка будущих перегородок. Определяются места, где нужен прямой угол (не во всех помещениях можно везде сделать прямые углы). Далее возводятся перегородки. Параллельно с каменщиком работает электрик и сантехник. Электрик прокладывает провода вдоль или под стенами и по потолку. Сантехник занимается системой отопления, перевариваются стояки отопления, при необходимости они прячутся в стену.

Затем приступают к работе штукатуры. Сначала устанавливаются маяки на стенах и потолках, вымеряются прямые углы и затем наносится штукатурный слой. После выполнения штукатурных работ заливается стяжка на полу. Возможна заливка стяжки поэтапно, т.е. при завершении штукатурных работ в какой-нибудь комнате. Параллельно устанавливаются оконные блоки и подоконники. Затем устанавливаются радиаторы отопления, и производится монтаж труб водопровода и канализации в санузлах и в кухне. Производится монтаж встроенных рам для сантехнического оборудования. Параллельно работает электрик, вмуровывая подрозетники и прокладывая оставшиеся провода. Так же он производит монтаж электрощита и установку автоматических выключателей и электрощётчика.

3D-модель: эскиз интерьера кабинета 3D-модель: эскиз интерьера утепленного балкона 3D-модель: эскиз интерьера ванной комнаты

По мере высыхания штукатурки и стяжки, производится монтаж подвесных потолков и малярные работы. После завершения сантехнических работ, приступает к работе плиточник.

После малярной подготовки стен и потолков, т.е. они прошпатлеваны, загрунтованы и зашкурены, и укладки керамической плитки, к работе приступает паркетчик. Укладывается и шлифуется фанера. Затем все рабочие, кроме паркетчика уходят с объекта на время укладки паркета. После завершения укладки паркета, он шлифуется и лакируется первыми двумя слоями лака. После его высыхания, паркет застилается оргалитом с проклейкой скотчем стыков на листах оргалита и в местах примыкания к стенам.

Затем проводятся финишные малярные работы (покраска стен и потолков, оклейка обоев), устанавливаются сантехнические приборы, двери и плинтуса. Производится монтаж розеток, выключателей, осветительных приборов.

После того как все монтажные работы выполнены, открывается паркет и лакируется оставшимися слоями лака.

Завершающим этапом работ является отмывание помещения и вывоз строительного оборудования.

Предоставлено компанией ART-DOM

Дата публикации 20.08.05



Материал предоставлен: ВашДом.RU
Дополнительные статьи по теме "Технологии ремонта"

Душ для души: лечебные свойства и каждодневная польза

Есть вопросы, задавая которые, человек чувствует себя странно. Принято считать, что некоторые вещи общеизвестны, а тот, кто все-таки решил признаться в нехватке информации, либо наивен, либо подозрителен, либо просто поддразнивает тех, кому адресует, например, такой вопрос: "А как правильно принимать душ?" Улыбнулись? А теперь попробуйте ответить. Не беда, если вам не сразу удалось собраться с мыслями и рассказать о такой общеизвестной вещи. Загляните в эту статью - может быть, окажется, что в ваших знаниях о назначении и пользе душа есть пробелы?

Климат под контролем: выбираем кондиционер

Критерии выбора кондиционера, параметры и характеристики представленных на рынке моделей

Реклама:
Где заказать рерайтинг текстов узнай на сайте eTXT.ru