Категории каталога

Полотенцесушитель больше не потечет

Специализируемый теплообменник ТВЭК для применения дизайн-радиаторов в системах горячего водоснабжения (ГВС).

Импортируемые в Россию стальные дизайн - радиаторы, дорогостоящие, высококачественные приборы, в основном совместимы с закрытыми системами отопления, отвечающими европейским стандартам. В связи с тем, что более 90% дизайн-радиаторов, по своей сущности являются полотенцесушителями и устанавливаются в систему ГВС , то срок службы дизайн - радиаторов колеблется от 1,5 месяцев до 1,5 лет. Это обусловлено рядом причин:

  1. Наличие в ГВС большого количества кислорода, что приводит к активной коррозии дизайн - радиаторов
  2. Наличие в ГВС большого количества кальция, железа и пр., что приводит к "зарастанию" полотенцесушителей

Ряд зарубежных фирм пытаются решить эту проблему. На российский рынок поставляются полотенцесушители, изготовленные из сантехнической латуни, а также со встроенным теплообменником.

Германская фирма Arbonia поставляет полотенцесушитель Bagnosan, имеющий встроенный теплообменник.

Такая конструкция также не решает полностью проблему установки дизайн радиатора в ГВС.

Причины следующие:

  1. Медная спиралевидная гофрированная труба, имеющая небольшую толщину стенки, со временем истончается, что может привести к выходу дорогостоящего полотенцесушителя из строя.
  2. Проходное сечение первичного контура теплообменника уменьшается за счет отложений солей содержащихся в ГВС, что приводит к потере эксплуатационных качеств дизайн-радиатора.
  3. Наличие теплообменника существенно ухудшает дизайн полотенцесушителя.

Российские специалисты решили эту проблему, разделив систему на два контура. Первое - это теплообменник, непосредственно связанный с ГВС, во второй контур входит дорогостоящий дизайн-радиатор. Первый контур теплообменника ТВЭК - нержавеющая труба, второй контур обеспечивает гравитационную циркуляцию теплоносителя в дизайн-радиаторе.

Средняя температура полотенцесушителя определяется температурой теплоносителя на входе, конструкцией теплообменника и полотенцесушителя, а также конструкцией трубопроводов. Испытания теплообменника показали, что при номинальной мощности полотенцесушителя порядка 600 Вт, длине подводящих трубопроводов не более 3-х метров и при температуре воды в системе ГВС +65гр., температура в полотенцесушителе достигает 55 гр. Увеличение длины трубопровода на 1 метр уменьшит значение средней температуры на 1 градус. Таким образом разность температур воды в системе полотенцесушителе составляет 10 градусов. Эта потеря по температуре несущественная, если учесть то обстоятельство, что по сравнению с обычными М и П образными полотенцесушителями дизайн-радиатор имеет более разветвленную теплоотдающую поверхность.

Установка теплообменника ТВЭК дает следующие преимущества:

  • Гарантированный ресурс работы 20 -30 лет
  • Исключение опасности гидравлических ударов
  • Применение в первом контуре нержавеющей трубы исключает коррозию
  • Возможность профилактических прочисток при засорах и освобождения от накипи
  • Автономное отключение полотенцесушителя от ГВС
  • Простота монтажа и эксплуатации
  • Простота обслуживания

Технические данные теплообменника ТВЭК.

Рабочее давление--------------------------------------------1,0 МПа

Испытательное давление-----------------------------------2,5МПа

Максимальная температура теплоносителя --------------110 С

Присоединительные размеры теплообменника-------------3/4"



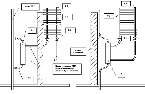
Схема монтажа дизайн - радиатора с теплообменником "ТВЭК"

Рис. 1 Рис. 2


Обозначения: ОП - отопительный прибор; А- адаптер; ВЗ- вентиль запорный; ВР- вентиль регулировочный; ВК- воздуховыпускной клапан; трубопроводы, фитинги поставляются по заказу.

Схема подключения в систему ГВС показана на Рис.1

Схема подключения отопительного прибора в систему отопления показана на Рис. 2

Трубопроводы теплообменника не должны иметь изгибов типа _____, во избежание образования воздушной пробки. Полотенцесушитель должен быть расположен выше теплообменника (для обеспечения гравитационного давления в системе). Поэтому теплообменник монтируется близко к уровню пола.

Вентили, устанавливаемые на входе/выходе теплообменника, предназначены:

  • для отключения при профилактической промывке теплообменника
  • для отключения от магистрали в аварийных ситуациях
  • для замены дизайн - радиаторов без отключения стояка

В качестве теплоносителя рекомендуется использовать дистиллированную воду или кипяченую водопроводную воду. Допускается применение антифриза не более 30%.Теплообменник ТВЭК является прибором, решающим проблему использования западноевропейских дизайн - радиаторов в России, значительно увеличивая их ресурс работы, делает их применение безопасным и надежным.



В течение года системы теплообменник - полотенцесушитель, безаварийно эксплуатируется в Москве.

Тепловые испытания, проведенные НИИ Сантехники доказали абсолютную работоспособность системы.

В сертификационном центре "САНРОС" проведены сертификационные испытания системы и теплообменник ТВЭК сертифицирован как совместный продукт с дизайн - радиатором "Kermi". Применение технические решения запатентованы.

Предоставлено компанией Тайм

Дата публикации 29.04.02



Материал предоставлен: ВашДом.RU

Реклама:
Где заказать рерайтинг текстов узнай на сайте eTXT.ru