Категории каталога
Каталог / Архитектура / Дом-пропеллер трогает лопастями верхушки деревьев

Дом-пропеллер трогает лопастями верхушки деревьев

В данном случае "сибарит" — это не праздный, избалованный роскошью человек, как толкует нам словарь. Sybarite UK — молодая британская фирмочка, основанная Торкуилом Макинтошем (Torquil McIntosh) и Саймоном Митчелом (Simon Mitchell) в феврале 2002 года.

Этим двоим чуть за тридцать. И они утверждают, что лихо воплощают свои мечты, что для них не существует никаких границ между изобразительным искусством, скульптурой и архитектурой. И что слово "сибарит" как нельзя лучше описывает их работу, означая нечто "пышное, роскошное и доставляющее удовольствие".

Sybarite UK стремится "дразнить все человеческие чувства" и "внедрять архитектуру с дизайном в живую окружающую среду", получая "вдохновение от органических форм природы", не чураясь новых промышленных технологий.

Сколько человек может жить в Tree House? Точно неизвестно, но на этой картинке мы видим, как минимум восьмерых (иллюстрация Sybarite UK).

Сколько человек может жить в Tree House? Точно неизвестно, но на этой картинке мы видим, как минимум восьмерых (иллюстрация Sybarite UK).
За шесть лет своего существования "сибариты" родили не так уж много проектов – примерно дюжину. И при знакомстве практически со всеми идеями Макинтоша и Митчела человеческие чувства пребывают в олимпийском спокойствии, типа "ну-ну".

Однако Concept Tree House чем-то цепляет, задевает за живое. Чем же? Ну, уж точно не описанием проекта. Оно является лишним примером того, как выдать массу слов и не сказать при этом ровным счётом ничего. Жаль.

В общем, британцы говорят, что это "концептуальный исследовательский проект", через призму которого авторы бросают новый взгляд на "сельские районы Англии, типа Уилтшира и Глостершира".

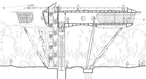
Каждую из трёх "лопастей" здания держат по три опоры. По центру "пропеллера" — вход в дом с лестницами и, заметьте, лифтом (иллюстрация Sybarite UK).

Каждую из трёх "лопастей" здания держат по три опоры. По центру "пропеллера" — вход в дом с лестницами и, заметьте, лифтом (иллюстрация Sybarite UK).
"В товариществе с местными властями, планировщиками и застройщиками мы стремимся разработать концепцию модульного дома на деревьях, выработать более органичный подход к жизни страны", — читаем мы.

"С точки зрения архитектуры, дизайн направляется снизу вверх и через интерьер выходит за пределы объекта, концентрируясь на представлении выше горизонта, создаваемого деревьями".

Авторы также сообщают, что "живот" дома можно кинетически приспособить к холмистой местности у основания, а для выработки электричества здание способно использовать энергию ветра. Похвально.

Интерьер у художника вышел спартанским, но прозрачность стен с панорамным обзором выглядят многообещающе (иллюстрация Sybarite UK).

Интерьер у художника вышел спартанским, но прозрачность стен с панорамным обзором выглядят многообещающе (иллюстрация Sybarite UK).
Дом собирается из заранее изготовленных лёгких модульных секций в течение двух недель, и по желанию заказчика количество комнат может варьироваться, например, от одной до пяти спален.

Вот тут-то описание и заканчивается, не успев начаться. Но Tree House всё равно привлекает. Пожалуй, прежде всего, тем, что радует глаз.

Белоснежная конструкция в виде трёхлопастного пропеллера кажется парящей над лесом, вызывая ассоциации с неопознанными и опознанными летающими объектами.

Кроме того, вспоминаются дома-тарелки из "ретробудущего" 1960-х, всплывают какие-то упоминания о жизни на деревьях из книг и кино.

А вот изобилие одинаковых домов в лесу не радует совершенно (иллюстрация Sybarite UK).

А вот изобилие одинаковых домов в лесу не радует совершенно (иллюстрация Sybarite UK).
Плюс ко всему приятно успокаивает зелень и голубизна неба, стеклянные стены, лежаки и столики на крыше. На картинках "сибаритов" действительно просматривается какая-то мечта, здоровая и чистая.

Таким образом, давший волю своей фантазии зритель может и не стать ломать голову по поводу таких вопросов, как подводка инженерных и прочих сетей, незавидная судьба деревьев, оказавшихся под домом в почти постоянной тени…

Наконец, человек, как в омут с головой погрузившийся в замечательную "зелёную" идею Sybarite, может и не подумать о вреде экологии — последствии размещения посреди леса здания, которому "энергию ветра", среди прочего, нужно тратить на питание лифта.

Что ж, пусть власти Уилтшира с Глостерширом и решают, надо строить Tree House, или это чистой воды сибаритство.

Материал предоставлен: Membrana.RU - Люди. Идеи. Технологии.

Реклама:
Где заказать рерайтинг текстов узнай на сайте eTXT.ru