Категории каталога

Формула рациональности

Филипп УРБАН
проект: ООО «Разумная архитектура»; концепция: «ВЕЛЮКС Россия»

Формула рациональности

Выбор проекта дома для постоянного проживания для человека, привыкшего к городской квартире, задача не из легких. Практика показывает, что, устав от набивших оскомину решений, навязанных проектировщиками типовых «малогабариток», будущий домовладелец может впасть в две крайности. Если позволяют средства, он готов кроить новый дом «под себя», подобно дорогому костюму, не считаясь с общепринятыми представлениями о комфорте и рациональности. Второй вариант, который обычно выбирают застройщики, стесненные в средствах, – вариации на тему классического дома 6 х 9 метров с мансардой под ломаной крышей, что позволяет выиграть дополнительные площади на втором этаже. Истина, как водится, лежит между двумя крайностями.

 На рынке сегодня представлено множество готовых проектных решений. Им посвящены иллюстрированные каталоги и интернет-ресурсы, и, казалось бы, проблема выбора, возникающая у будущего домовладельца, не столь остра. Между тем из многообразия предложений обычно приходится выбирать одно, искать компромисс между пристрастиями, потребностями и финансовыми возможностями. Но, кроме того, дом в любом случае обязан стать ликвидным объектом недвижимости. Строение, которое, подобно эксклюзивному костюму, слишком хорошо «подогнано» под своего владельца, практически невозможно продать, окупив вложенные в него средства. И в гардероб его не упрячешь, если предложенное решение вышло из моды.

А ведь вкусы и предпочтения возможных приобретателей тоже не стоят на месте, а меняются, причем весьма стремительно. Ушли в прошлое унылые каменные «коробки» начала девяностых годов прошлого века. Безразмерные кирпичные замки с башенками тоже выглядят старомодными и не ласкают взор покупателя. На пике популярности деревянное домостроение и каркасные технологии. В Европе популярны лаконичные и простые формы, служащие функциональности внутреннего пространства и стандартизации строительных элементов.

 При этом (вот она, особенность момента!) даже состоятельные приобретатели стремятся к рациональным и эргономичным планировочным решениям: дом должен быть без проблем с отоплением, светлым и просторным внутри, в нем не должно быть «ненужных» помещений, лабиринтов и темных закоулков. Эти составляющие формулы дома еще никто никогда не оспаривал. Что же касается внешней отделки, то современные материалы и технологии позволяют легко сменить ее, подобно одежде. А она способна до неузнаваемости изменить готовый типовой проект. В своих публикациях мы уже пытались вывести формулу оптимального коттеджа для постоянного проживания.

Тем не менее даже рациональные дома бывают разными. Традиционная для недавнего времени постройка – высокий дом 6 х 6 метров с верандой и мансардой под ломаной крышей, покоящийся на массивном цоколе с гаражом и громоздким отопительным агрегатом, – ушел в прошлое. В более современных проектах автомобили переехали под навесы или в боковые гаражные пристройки, санузлы с душевыми кабинами переместились ближе к спальням, а полуподвальные сауны-«шашлычницы» уступили место классическим русским парным, устроенным в отдельных постройках. Современные домовладельцы решительно отказались от бесполезного нежилого цоколя, а малопригодные чердаки уступают место уютным спальным мансардам.

Еще недавно наклонное мансардное окно считалось приметой едва ли не элитарного дома, однако производители оконных систем, кровельных и утепляющих материалов убедили домовладельцев в демократичности и доступности своей продукции.

Более того, современные решения подкровельного пространства, построенные на грамотном расположении наклонных окон, стали одним из слагаемых формулы рационального проекта.

Попробуем отметить основные составляющие рационального дома для постоянного проживания на примере конкретного проекта, а попутно рассмотрим соображения, которые не мешает принять во внимание при проектировании.

Внутри больше, чем снаружи

 При кажущихся весьма скромных размерах дом, представленный ООО «Разумная архитектура», имеет общую площадь около 224 кв. м. Это как раз тот случай, когда благодаря рациональному использованию подкровельного пространства за простым и лаконичным фасадом могут скрываться самые необычные планировочные решения, которым, впрочем, не откажешь в эргономичности и выразительности.

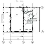
Совершим небольшую экскурсию по дому, построенному по данному проекту, попутно отмечая, чем продиктованы те или иные решения. Войдя в дом через тамбур, оказываемся в холле. Наличие тамбура принципиально важно, ведь он поддерживает баланс уличной и домашней температур. Из него можно попасть в помещение котельной. Для дома, расположенного в организованном коттеджном поселке, это иногда является необходимостью: работники эксплуатационных служб имеют доступ к оборудованию в отсутствие хозяев.

Просторный холл в данном проекте является связующим звеном между всеми помещениями первого этажа.

 Первый этаж поделен на две зоны: общую, включающую в себя объединенные в одном помещении гостиную, кухню и столовую, а также приватную: спальню и санузел (он при этом остается в общем доступе). Спальня внизу – весьма желательный элемент, когда в доме есть пожилые люди, для которых подъем на второй этаж проблематичен.

Самое просторное и объемное помещение в доме, безусловно, гостиная. Проектирование единого пространства кухня–столовая–гостиная является современным трендом частных домов. Благодаря такой планировке, создается объем, которого часто не удается добиться в небольших по площади домах. Кухню в таком пространстве можно обособить элементами декора, а запахи легко удаляются современными системами вентиляции. Современной планировочной тенденцией является наличие второго света. В больших комнатах часто сложно обеспечить хорошую освещенность, поэтому решение установить окна второго света оказывается самым правильным. Благодаря ему, пространство обретает дополнительный объем и естественное освещение.

В данном проекте, несмотря на большие фасадные окна и полностью стеклянные двери в гостиной, естественного света было бы явно недостаточно. Мансардные окна второго света позволяют не только освещать, но и эффективно проветривать дом. Летом же регулировать перегрев можно с помощью солнцезащитных конструкций: рольставен и маркизетов.

Существенным преимуществом верхнего света является организация связи между этажами. В самом деле, многим знакомо чувство тревоги и дискомфорт, возникающие на втором этаже двухэтажного дома: порой кажется, что внизу кто-то есть, и это заставляет напряженно прислушиваться к любым шорохам. Проектировщикам давно известен этот психологический феномен, связанный с ощущением потери контроля за всем домом. В рассматриваемом проекте эта проблема была успешно разрешена именно за счет общего пространства гостиной.

Поднимаемся на второй этаж, в приватную, хозяйскую, зону. Мансардное окно над лестницей обеспечивает освещение и вентиляцию всего дома. Проектом предусмотрен небольшой холл, связывающий помещения второго этажа. Здесь может быть организована семейная гостиная: домашний кинотеатр, детская, игровая, спортзал или зимний сад. Мансардные окна сделают и холл светлым и уютным.

В мансарде расположены две спальни, а также кабинет-библиотека. Естественно, в зависимости от желаний и потребности хозяев, назначение помещений может меняться, а одна из комнат, к примеру, стать детской. Основное достоинство интерьера кабинета-библиотеки – интересная комбинация из четырех мансардных окон, которые создают объем и обеспечивают естественный свет. Обычные фронтальные окна отсутствуют здесь, и зачастую отказ от них оказывается самым рациональным решением. Количество света от этого не уменьшается, так как мансардное окно дает на 20% больше света, чем фасадное. При этом отсутствие вертикальных окон позволяет расставлять вдоль торцевых стен классическую корпусную мебель – книжные шкафы.

В мансарде также устроен довольно-таки светлый санузел. В сан-узлах всегда уместны мансардные окна: они обеспечивают хорошую вентиляцию, конфиденциальность и хорошее естественное освещение с возможностью адекватного восприятия цветов (женщины оценят это по достоинству). Такие интерьерные решения невозможны в городской квартире.

Основное достоинство мансардных окон, в полной мере использованное в данном проекте, – возможность устанавливать их везде, привязывая к интерьерам, а не к решению фасада, как это обычно происходит в «классическом» среднем этаже.

Сегодня на рынке представлено огромное количество проектов – на любой покупательский вкус и кошелек. Однако данное решение сфокусировано на потребностях и пожеланиях большинства современных семей среднего класса, мечтающих о собственном доме. При выборе проекта будущего коттеджа их «семейные ценности» следует принимать во внимание. Поскольку, если когда-нибудь такой дом придется продавать, они могут стать решающим фактором при принятии решения о покупке.

Материал предоставлен: Загородная недвижимость zagorod.spb.ru

Реклама:
Где заказать рерайтинг текстов узнай на сайте eTXT.ru