Категории каталога
Каталог / Строительство и ремонт / Техника и оборудование / Электрооборудование / Принцип работы УЗО и его применение для защиты от поражения электрическим током

Принцип работы УЗО и его применение для защиты от поражения электрическим током

Мы в своей повседневной работе частосталкиваемся с тем, что многие из наших партнёров хотели бы больше узнать обУЗО. Об этом модульном устройстве, использование которого предписывается ПУЭ,единственном из модульных устройств, требующем пожарной сертификации (этим яещё раз хочу подчеркнуть всю важность понимания принципов его работы). Мырешили попробовать выполнить эту просьбу. И прежде чем вы в очередной разобратитесь к нам за этими изделиями, мы бы хотели, чтобы вы о них узнали то,что написано в этой статье. Наше изложение, к сожалению, перегруженоинтересной информацией, и наша рекомендация ознакомиться с ним как можно внимательнее.

Схема поражения электрическим током человка.

Много летназад, я, как и многие, свято верил в то, что тот автоматический выключатель,который стоит в этажном щите в случае чего спасёт мне жизнь. В общем-то,однажды так и случилось: Однако, уже потом, проводя домашние опыты ссопротивлением собственного тела, я убедился, что автомат не является реальнойзащитой от поражения человека электрическим током и обеспечитькороткозамкнутость цепи можно далеко не всеми частями тела. Другими словами,если через человека потечёт банальный ток в 16А при 220V,то ему вполне хватит.

Это означает, что длятого, чтобы реально защитить человека от поражения электрическим током,необходимо устройство, отслеживающее утечку тока из цепи (ту, которую создастток, протекающий через тело человека). Определим, какой величины утечку токадолжно идентифицировать такое устройство. Для ориентировки привожу следующуютаблицу.

Ток через тело

Ощущение

Результат

0,5 mA

Не ощущается. Слабые ощущения
-языком,
-кончиками пальцев,
-через рану.

Безопасно

3 mA

Ощущение близкое к муравьиному укусу

Не опасно

15 mA

Если взялись за проводник, то невозможность отпустить его

Неприятно, но не опасно.

40 mA

Судороги тела, судороги диафрагмы

Опасность удушья в течение
нескольких минут.

80 mA

Вибрация желудочка сердца.

Очень опасно,
приводит к достаточно
быстрой смерти.

Учитывая этиданные, в соответствии с МЭК 1008/EN 61008, концерн <АВВ> производит УЗО сосрабатыванием при токе утечки 10mA, 30mA, 300mA.

Принцип работы УЗО

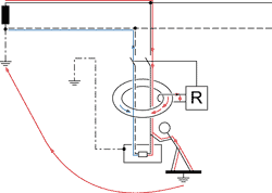
Принцип работыУЗО достаточно прост и строится на двух широко известных законах физики:правиле сложения токов в узле и законе индукции. Схематически работа УЗОпроиллюстрирована на рисунке ниже.

Фаза и нейтраль проходят через тороидальный сердечник, такимобразом, что наводимые ими в торойде поля противоположно направлены. Приусловии отсутствия утечек в цепи, эти поля компенсируют друг друга. Есливозникает утечка, как это показано на рисунке, в обмотке торойда начинает течьток (так как токи, текущие по неитрали и по фазе, не равны). Размер этого тока оценивает реле разностноготока "R". При превышении определённого порога реле вызывает прерывание цепи. Теперь болееподробно коснёмся реле разностного тока.

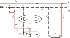
На рисунке схематически показано такое реле.

Схема реле разностного тока.

Принцип егоработы также построен на законе индукции. Итак, в обычном состоянии <Арматура>,являющаяся приводом расцепителя удерживается в состоянии равновесия с однойстороны полем постоянного магнита, с другой - пружиной (обозначенной на рисункекак сила "F"). В случае утечки, ток, наводимый в катушкеторойда, протекает через катушку реле разностного тока и наводит в сердечникеполе, компенсирующее постоянное поле магнита реле. Как результат, сила "F" приводит к срабатываниюрасцепителя. Хочу заметить, что к такому реле предъявляются высокие требованияпо чувствительности. Реле разностного тока, встроенное в УЗО производства АВВимеет чувствительность 0,000025 Вт!!! Позволить себе встраивать в свои изделияустройства столь высокой чувствительности могут далеко не все производители.Все остальные элементы качественных УЗО должны быть тоже выполнены свысокой точностью. Так на фотографии справа представлено УЗО производства АВВ,а слева - другого производителя (а точнее - подделка).

Подделка УЗО               УЗО производства концерна АВВ

В УЗО на левомрисунке виден некий электронный блок, и управляющий сигнал расцепителю подаётсяименно этим блоком. Т.е. принцип работы построен не на точной механике, а наэлектронике и нет точных данных для измерения надёжности таких компонентов. Какрезультат, УЗО, построенные на базе таких электронных блоков, не соответствуюттребованиям стандартов, хотя и срабатывают в определённых ситуациях (и ихстоимость ниже). И дело даже не в качестве комплектующих электронного блока. Посути, в этом случае мы имеем дело с УЗО, зависящим от напряжения питания, укоторого помимо того защита не гарантированна при обрыве неитрали. И такие УЗОразрешены только для специального применения или в случае постоянногонаблюдения за оборудованием обученным персоналом. Но ведь УЗО для того иустанавливается, чтобы вероятность его срабатывания в определённой ситуациибыла все 100%, и никак не 80% или даже 50%, как это бывает с некачественнымиизделиями, а некоторые из них и вовсе неспособны сработать. Не забывайте, чтоУЗО в основном устанавливают в первую очередь для защиты детей!!!

Теперьотметим ещё ряд моментов. В соответствие с классификацией, УЗО подразделяют на:

Tип AC Тип АС УЗО - УЗО, размыкание которого гарантировано в случае, если разностный синусоидальный ток иливнезапно возникает, или медленно увеличивается.

Тип А Тип А УЗО- УЗО, размыкание которого гарантировано в случае, если синусоидальный илипульсирующий разностный ток или внезапно возникает, или медленно увеличивается.

"A" тип УЗО стоит дороже, но сфера еговозможного применения больше, чем у типа <АС>. Дело в том, что оборудование,включающее электронные компоненты, (компьютеры, копиры, факсы,...) при пробоеизоляции на землю могут создавать несинусоидальные, но однонаправленныепостоянные пульсирующие токи. В этом случае изменение индукции (dB1) ,вызываемое пульсирующим однонаправленным постоянным током в дифференциальномтрансформаторе (реле разностного тока) стандартного AC-типа имеет низкуювеличину. Эта величина не достаточна, чтобы дать необходимую энергию дляоткрытия контактов выключателя. И в этих случаях следует использовать УЗО типа<А>. Его срабатывание достигается за счёт магнитного тороида с низкой величинойостаточной индукции и электронной цепи во вторичной обмотке трансформатора.

Конечно,изложенный здесь материал - далеко не всё, что можно рассказать об УЗО. Следитеза нашими публикациями.

Взаключении я бы хотел дополнить своё изложение наиболее типичными ошибками прииспользовании УЗО, которые вызывают ложное срабатывание.

Вариант 1. Перепутаны неитрали двух УЗО.

Неправильное включение УЗО - перепутаны нейтрали двух УЗО

Вариант 2. Параллельное соединение неитралей.

Неправильное включение УЗО - параллельной соединение нейтралей.

Вариант 3. Соединение питания на линии и нагрузке. А, посути, неправильное подключение провода неитрали к устройству.

Неправльное включение УЗО - неправильное подключение провода нейтрали к УЗО

Вариант 4. Соединение "N" и "PE" (Дополнительное соединение "N" и "PE" внутри розетки "SV").

Неправильное включение УЗО - допольнительное соеденение N и PE внутри розетки SV

Еслиу Вас возникли какие-либо вопросы относительно УЗО, пожалуйста, задавайте их.Наши инженеры с радостью ответят на них. И, возможно, мы вместе ещёбольше узнаем о таком простом и таком сложном устройстве, как УЗО!!!

Роман Тютюкин.

Предоставлено компанией OОО <Фирма ИКм>

Дата публикации 16.09.02



Материал предоставлен: ВашДом.RU

Реклама:
Где заказать рерайтинг текстов узнай на сайте eTXT.ru